

NE板鏈斗式提升機產品概述:
NE板鏈斗式提升機是引進國外 技術而 的新型提升產品;NE系列板鏈式斗式提升機應用于各工業 ,由于節能 ,NE型板鏈斗式提升機正在逐步替代HL型等環鏈式提升機。NE型板鏈斗式提升機為流入式喂料,物料流入料斗內靠板鏈提升到頂端,在物料重力作用下自行卸料。主要技術參數符合機械部標準(JB3926-85)。NE型板鏈斗式提升機采用自流式裝料,重力式卸料。鏈條是 合金鋼高強度板式鏈條,耐磨而 。驅動部分采用硬齒面減速器。該提升機適用于中、大塊和有磨琢性的物料(如石灰石、水泥熟料、石膏、塊煤)的垂直輸送,物料溫度控制在250℃以下。
NE系列板鏈式斗式提升機為板鏈式、重力誘導卸料的提升設備。適用于垂直輸送粉狀、顆粒狀、小塊狀磨琢性或無磨琢性物料,如生料、水泥、煤、石灰石、干粘土、熟料等。
NE系列板鏈斗式提升機工作原理:
NE系列板鏈式斗式提升機系流入式喂料,物料流入料斗內靠板鏈提升到頂端,在物料重力作用下自行卸料。本系列提升機規格多(NE15~NE800共11種)提升量廣;且生產能高,能耗較低,該機采用全封式機殼鏈速低,幾乎無回料現象,因此無功功率損耗少,噪聲低,壽命長。
NE系列板鏈斗式提升機產品 點:
1.密封性好,環金污染少。
2.操作、維修方便、易損件少。
3.使用成本低,由于節能和維修少,使用成本極低。
4.運行 , 的設計原理,保證整機運行的 性,密封性好。環境污染少。
5.結構港型號,精度高。機殼經折邊和中間壓筋,再經焊接,剛性好、外觀漂亮。
6.機械尺寸小,與同等提升量的其它各種提升機相比,這種提升機的機械尺寸較小。
7.輸送能力大,該系列提升機具有NE15~NE800多種規格。提升量范圍為15~800m3/h。
8.操作方便,維修少,易損件少。輸送鏈為套筒滾子鏈,誘導式重力卸料,用于各種粉狀、塊狀物粒的垂直提升。
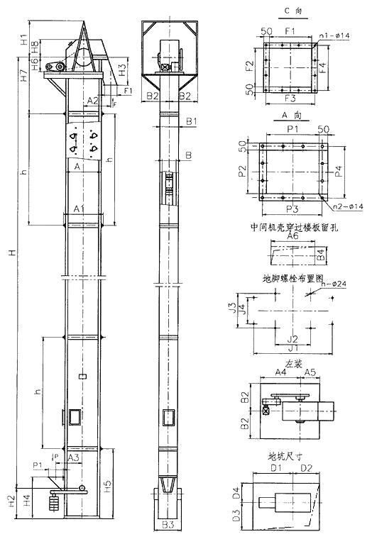
NE系列板鏈斗式提升機外形示意圖:

NE系列板鏈斗式提升機主要結構:
NE系列板鏈式斗式提升機由運行部件、驅動裝置、上部裝置、中部機殼、下部裝置組成。
運行部件---由料斗和專用板式鏈條組成,NE30以及下采用單排鏈,NE50--NE800采用雙排鏈。
驅動裝置---采用多種驅動組合驅動,(依 用戶實際需要而定)。驅動平臺上裝有檢修架和欄桿。分左裝和右裝兩種。
上部裝置---安裝有軌道(雙排鏈)、逆止器、卸料口裝有防回料橡膠板。
中間節---部分中間節裝有軌道(雙鏈),以防止鏈條工作中擺動。
下部裝置---安裝有自動張緊裝置。
NE系列板鏈斗式提升機主要工作部件 點:
1、上部裝置:安裝有軌道(雙排道),防止鏈條擺動,逆止器,防止料斗回轉,物料阻滿下部機殼,卸料口裝有橡膠板防止回料。
2、中間節:部分中間節裝有軌道(雙排節)以防止鏈條工作中擺動,部分中間節裝有檢修門以便維修。
3、下部裝置:安裝有張緊裝置, NE15~NE50采用彈簧張緊,NE100~NE800采用重錘箱張緊。
4、上下鏈輪采用 ZG310-570。整體調質,HB229-269齒面淬火HRC40~48。
5、板鏈:鏈板采用 45 # HRC36~42 。
a、采用的板鏈有較高的剪切強度、疲勞強度及耐磨性能,運轉故障率低,使用壽命長;
b 、采用較低的鏈速度(o.5米/秒);
c、 采用大容量的料斗和較小的斗距,驅動功率低且輸送量大。尤為適應提升破碎后的石灰石和水泥熟料(≥NE50)。
NE系列板鏈斗式提升機技術參數表:
| 型 號 | 提升量(平方米/小時) | 物料 大塊度 | ||||
| 占百分比 % | ||||||
| 10 | 25 | 50 | 75 | 100 | ||
| NE15 | 15 | 65 | 50 | 40 | 30 | 25 |
| NE30 | 32 | 60 | 75 | 58 | 47 | 40 |
| NE50 | 60 | 90 | 75 | 58 | 47 | 40 |
| NE100 | 110 | 130 | 105 | 80 | 65 | 55 |
| NE150 | 170 | 130 | 105 | 80 | 65 | 55 |
| NE200 | 210 | 170 | 135 | 100 | 85 | 70 |
| NE300 | 320 | 170 | 135 | 100 | 85 | 70 |
| NE400 | 380 | 205 | 165 | 125 | 105 | 90 |
| NE500 | 470 | 240 | 190 | 145 | 120 | 100 |
| NE600 | 600 | 240 | 190 | 145 | 120 | 100 |
| NE800 | 800 | 275 | 220 | 165 | 135 | 110 |